有限会社村松建材の村松です。
今週も、施工現場で役立つ便利なアイテムの情報をお伝えします。
今回は、モルタル外壁の施工効率化と品質向上を目的とした製品「フジカワ通気ラス75Evo」をご紹介します。
▼公式LINEアカウントでも質問を受付中▼
━━━━━━━━━━━━━━━━━━━━━━━━━━
◆目次
2.フジカワ通気ラス75Evoの特徴・製品概要
3.フジカワ通気ラス75EvoにはラスモルIIが最適
4.フジカワ通気ラス75Evoで施工性と品質をアップ
━━━━━━━━━━━━━━━━━━━━━━━━━━

「フジカワ通気ラス75Evo」は、調合軽量モルタルの供給、独自のモルタル外壁工法の提案を行う「富士川建材工業」のオリジナル製品です。
ラス網(下地となる金網)と半透明裏打ち材を組み合わせた製品で、同社が提案する「ラスモルIIノンクラック通気工法」で使用します。
<ラスモルIIノンクラック通気工法とは?>

「ラスモルIIノンクラック通気工法」は、防水シートから仕上げまでシームレスに行える工法として、富士川建材工業が開発した外壁通気工法です。
高耐久性を持つ軽量既調合モルタル(ラスモルII)の表層に、耐アルカリガラス繊維ネットを伏せ込むことによって、低クラック・高耐久性を実現します。
●ラスモルIIノンクラック通気工法のメリット
・壁体内湿気を常時放出でき、壁体内の結露を防ぎ、低クラック・高耐久性を実現。
・通気層による遮熱効果で、外気温の影響を減らす(省エネ効果)
・胴縁上に面材が必要ないため、コスト・納期を削減
・1枚壁で自由度が高い設計、多様な仕上げが可能
このモルタル下地に使用する製品が、「フジカワ通気ラス75Evo」。
工法が従来のもの(ラスモルノンクラック通気工法)からバージョンアップしたことに伴い、下地部分のラスが新しくなりました。
<旧来のものからバージョンアップ>


上記の写真で見比べて分かるように、裏打ち材が半透明になったことで下地がしっかりと確認でき、施工性が向上しました。
また、リブ(力骨)のピッチが従来の半分になっており、剛性も大幅アップしています。
フジカワ通気ラス75Evoの特徴について、さらに詳しくみていきましょう。
2.フジカワ通気ラス75Evoの特徴・製品概要
それでは、フジカワ通気ラス75Evoの特徴や製品概要をご紹介します。
従来品に比べ、さまざまな部分がブラッシュアップされています。
<フジカワ通気ラス75Evo の特徴>
・施工中に下地を確認しやすい
半透明のポリエステル不織布を裏打ち材に使用しているため、下地をしっかりと確認しながら施行可能。
ステープル(材料を結合する金属材)の打ち損じを防ぎ、漏水の原因になるピンホール(壁材の表面に生じる小穴)を減らします。
・長期間壁を支える材質
溶融亜鉛メッキ鋼帯をラスの材質に使用。
耐食性・防サビ効果を備え、長期間にわたって壁を支えます。
・剛性に優れた作り
住宅金融支援機構の基準(700g/m2)、日本建築学会(JASS)の基準(800g/m2)を満たす831g/m2の質量を持ち、剛性に優れた作りになっています。
・補助胴縁が不要
リブ(力骨)のピッチを従来(150mm)の半分の75mmに設定。
剛性が格段にアップしており、ラスがたわみづらくなっています。
ビシッと平滑に貼れて施工性が良く、補助胴縁なしでも施工できます。
・ラスばさみを入れやすい
鉄板の板厚が0.3mm。また、リブ(力骨)の山高を3mmと従来(5mm)よりも低く設計。
ラスばさみが簡単に入り、施工がしやすくなっています。
・クラック対策
リブラス特有の、横方向へのクラックを対策。
リブ(力骨)の山高を3mmに抑え、モルタルへのストレスを軽減させることで、クラックの発生率を抑えました。

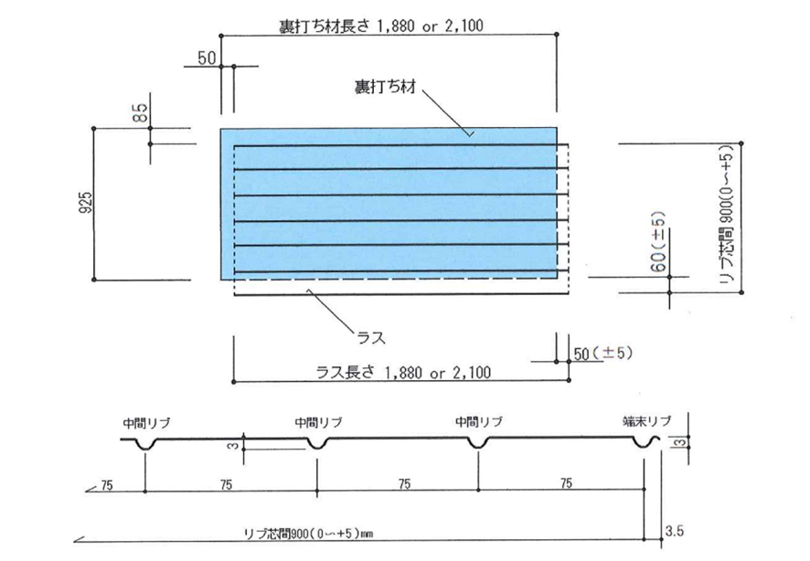
<フジカワ通気ラス75Evoの製品概要・寸法>
製品概要・寸法については以下をご参照ください。

●形状・寸法


3. フジカワ通気ラス75EvoにはラスモルIIが最適

「フジカワ通気ラス75Evo」とあわせて使用したいのが、「ラスモルII」。
通気工法用に開発された木造住宅用軽量既調合モルタルである、「ラスモル」をバージョンアップさせ、高強度・高耐久性・低吸水という特徴をさらに伸ばしました。
<ラスモルIIの特徴>
・優れた防耐火性能
防耐火性能に優れ、15mm圧で以下の認定を取得。
●構造区分
耐火・準耐火45分・準耐火1時間
●部位
外壁・柱・軒裏
・軽量で使いやすい
砂セメントモルタルに比べて半分の重量を実現。
下地への負担を軽減でき、施工性も良好です。
・安定の品質
管理された工場内で作られる既調合品(JIS認証取得)。
現場で配合管理する手間もありません。
このように、優れた特徴を持つラスモルII。
外壁通気工法のために作られた製品ですので、「フジカワ通気ラス75Evo」とあわせて使用されることをおすすめします。
4. フジカワ通気ラス75Evoで施工性と品質をアップ
「フジカワ通気ラス75Evo」の特徴や、それを使用した工法「ラスモルIIノンクラック通気工法」、同工法に使用する関連製品についてご紹介しました。
従来よりもバージョンアップした「フジカワ通気ラス75Evo」を、施工性・品質アップのためにぜひお役立てください!
今回ご紹介した製品は、村松建材でお取り扱いしています。
工法についてもっと詳しく知りたい、製品を取り寄せたいという方は、村松建材・村松までお電話またはメールください。
TEL:054-259-3121




